Компания АрхСтройМонтаж предлагает свои услуги по строительству домов и коттеджей под ключ по очень выгодной цене. Мы рады предложить Вам дом общей площадью 150 м2, который можно заказать у нас от фундамента до кровли.
Мы готовы выполнить фундамент на выбор: ленточный, монолитная ж/б плита, свайно-ростверковый. Несущие стены также могут быть выполнены из различных материалов, выбирайте керамоблок, кирпич или газоблок. Перегородки могут быть выполнены из кирпича или газоблоков.
Мы предлагаем несколько вариантов кровельного материала, которые могут подойти для любого дома: профлист, металлочерепица, мягкая кровля или черепица. Для отделки фасада можно использовать кирпич или декоративную штукатурку.
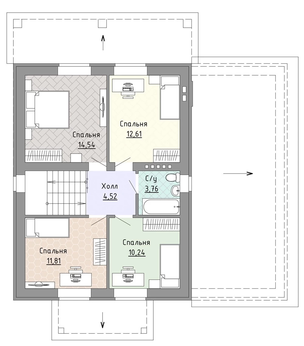
Наш дом имеет два этажа, два санузла и пять спален. Мы готовы выполнить каждый элемент дома максимальной точностью и качеством.
Закажите строительство дома или коттеджа у нашей компании, и Вы получите качественный и недорогой дом, который будет отвечать всем Вашим требованиям и пожеланиям.
Не откладывайте, звоните нам по телефону +7 (4872) 58-94-99 и заказывайте строительство дома или коттеджа под ключ по выгодной цене! Мы всегда готовы помочь Вам в постройке своего красивого и удобного дома!
Этапы строительства дома
Если Ваша мечта — свое собственное загородное жилье, то есть два способа получить долгожданные ключи от дома. Первый — приобрести готовый дом от «АрхСтройМонтаж». Второй вариант — построить самостоятельно. Для хорошего результата лучше обратиться к профессионалом.
01
Подготовительные работы
Еще до начала работ нужно выполнить целый ряд процедур:
- Выбрать землю.
- Провести геологическое исследование на участке.
- Заказать разработку проектной документации.
- Согласовать план будущего сооружения в контролирующих инстанциях.
- Выровнять поверхность на стройплощадке, и подготовить места для складирования стройматериалов.
Только после выполнения перечисленных этапов следует начинать основные задачи по возведению планируемого дома.
02
Покупка земли
По действующему Градостроительному законодательству Российской Федерации частным лицам разрешено возведение жилья на собственном участке высотой не более трех этажей. Площадь территории следует выбирать исходя из планируемых габаритов постройки. Для комфортного проживания количество земли должно быть в несколько раз больше, чем периметр здания.
Важно разобраться в юридических аспектах назначения земель. Убедитесь, что участок пригоден для возведения жилого помещения. Как правило, такое разрешение по-умолчанию выдается местности с целевым назначением ИЖС. В этом случае Вам будет позволено зарегистрироваться (прописаться) в новом жилище как в обычном многоквартирном.
Перед тем, как разобрать основные этапы строительства здания, перечислим несколько важных критериев при выборе места проживания:
- благоприятная экологическая обстановка местности;
- ландшафт территории без резких перепадов, склонов, холмов;
- доступность коммуникаций (газ, вода, электричество и т. п.);
- дороги и подъездные пути надлежащего качества;
- инфраструктура позволяет устроить комфортный быт.
Если все, или большинство из этих параметров совпали — можно оформлять сделку по покупке этой площади.
03
Проектная документация
Разрешение на постройку и введение объекта в эксплуатацию Вам предстоит получить в департаменте архитектуры муниципального образования. Такой документ действителен в течение 10 лет с момента получения. Основные пункты, на которые будет обращено внимание контролирующих инстанций:
- Внешний вид.
- Цвет и форма фасада здания.
- Площадь.
- Этажность.
- Обустройство участка.
Чтобы чиновники смогли вынести вердикт, потребуется провести большой объем подготовительных работ. В специальном бюро предстоит заказать визуализацию будущей постройки с поэтажными план-схемами. Также в этом пакете документации должны содержаться все технические параметры коммуникаций. Небольшой совет: если Вы хотите сэкономить на разработке проекта, то выбирайте типовой готовый шаблон, которых довольно много в открытом доступе.
04
Последовательность работ при строительстве частного дома
-
ФУНДАМЕНТ
От того, насколько хорошо сделана основа, будет зависеть итоговый результат. Ошибки на данном этапе могут быть фатальными, и выявляться лишь после окончания постройки. Обратите внимание на следующие технические нюансы:
- Глубина и ровная площадка котлована.
- Организация дренажных систем водоотведения.
- Качество бетона.
- Обустройство гидроизоляции.
Также первый этап строительства требует неукоснительного соблюдения регламентированных стандартов. В случае пропуска какого-либо пункта могут образовываться трещины и отслоения бетонного основания, которые напрямую влияют на срок эксплуатации объекта.
-
СТЕНЫ
Помимо эстетической составляющей, которая заключается в цвете и форме облицовки, немаловажным фактором является подбор качественных материалов. Выбор стройматериалов (газобетон, кирпич, брус и т. п.) зависит также от почвы на местности, вида фундамента и бюджета. В любом случае основной критерий — выбрать качественную продукцию, подходящую под Ваши требования. Второй по очереди, но не по значению пункт — найти квалифицированных специалистов, которые будут возводить стены и перегородки. От их работы во многом зависит не только эстетика, но и долговечность сооружения. Отметим, что хорошая установка дверей и окон будет определять комфорт жизни в коттедже.
-
КРОВЛЯ
В наших климатических условиях очень важно обустроить не только красивую, но и прочную крышу, способную противостоять всем стихиям. Сегодня в специализированных магазинах можно найти огромное количество разнообразных видов кровельных материалов. Но не каждая из этих разновидностей подойдет именно Вам. Перечислим некоторые сложности, которые встречаются при выборе кровли:
- Не все битумные плитки подходят для зон с большим количеством осадков, и долгими снежными зимами.
- Если есть хотя бы одно место, через которое вода попадает под внешний слой, то при кристаллизации возможен разрыв.
- При недостаточной теплоизоляции и гидроизоляции, под действием конденсата или осадков, фанера, дерево, и утеплитель могут быстро испортиться и разбухнуть.
- Звукоизоляции нужно уделить внимание, ведь от этого зависит комфорт жильцов верхних этажей.
Металлочерепица — довольно универсальный вариант, который подходит для эксплуатации в российских климатических условиях.
-
КОММУНИКАЦИИ
Кровеносная система жилого здания — это его инженерные сети. Дело не только в том, есть они или нет. От того, насколько хорошо и грамотно выполнен их монтаж, будет зависеть не только удобство проживания, но и жизнь людей. Халатность и невнимательность при установке системы подачи газа нередко вызывают катастрофические последствия. Электропроводка, водоснабжение, и канализация тоже не терпят попустительства при проведении работ. Поэтому важно уделять этому вопросу особое внимание.
Все эти этапы строительства на слуху, и о них знают даже новички в отрасли. Но один момент с коммуникациями часто упускают из виду опытные специалисты. Мы говорим о системе вентиляции. Приток и отток воздуха из помещений напрямую влияет на микроклимат. От недостаточной циркуляции кислорода может возникать повышенная влажность, что, в свою очередь, чревато отсыреванием стен, наледью на дверях, и проблемами со здоровьем всех жителей. Уделите этому пункту особое внимание при проектировании.
-
ВНУТРЕННЯЯ ОТДЕЛКА
Гармоничный и практичный интерьер начинается с черновой отделки комнат. Ровные стены сильно упростят чистовой ремонт. Уделите предварительным работам достаточно времени, чтобы в дальнейшем не разочароваться в результате. На финише советуем воспользоваться услугами дизайнеров интерьера или скачать готовые проекты из интернета. Ведь сам по себе каждый из предметов мебели и декора может выглядеть впечатляюще, но только их грамотное сочетание превратит Ваше жилище в идеальное место для жизни.
-
СДАЧА В ЭКСПЛУАТАЦИЮ
Последовательность постройки дома подразумевает взаимосвязь между каждым шагом. На этом уровне следует вернуться в начало. Во втором пункте мы готовили проектную документацию. Если Вы все сделали правильно, то это означает только половину положительного результата. Оставшаяся часть зависит от того, насколько реализация проекта соответствует тому, что было на бумаге. Главное — выбрать квалифицированного строителя, который выполнит свою работу ответственно и в соответствии с документацией. При возникновении сложностей с узакониванием объекта следует пользоваться услугами юристов.