Дом из газобетона Неаполь

Неаполь - 0
Неаполь - 1
Неаполь - 2
Неаполь - 3
Проект № Неаполь
Цена проекта: 100 000 Р
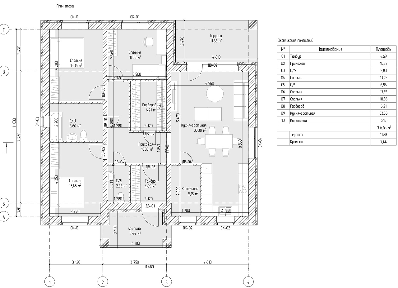
Общая площадь: 106.63 м2
Число этажей: 1
Число санузлов: 2
Число спален: 3

Консультация по строительству:

8 (4872) 58-94-99 написать в WhatsApp

Цена строительства дома:

базовая от 6 950 000 Р
Что входит в стоимость
Получить консультацию
Похожие проекты
Назад

В стоимость входитСравнение комплектаций

Базоваякомплектация Комфорткомплектация Комфорткомплектация
Цена 6 950 000 р.
Проект компании
Архитектурные решения
Конструктивные решения
Фундамент под ключ(Конструктивное решение фундамента может уточняться по результатам инженерных изысканий: геология и топосьемка (перепады на участке) и проектных решений)
Разработка грунта
Выводы сетей(водоснабжение, канализация, электроснабжение)
Устройство железобетонного ленточного фундамента
Устройство железобетонной плиты пола
Несущие стеновые конструкции, перегородки, венканалы(Возможно выполнение несущих стен и из других стеновых материалов)
Наружные стены Газоблок Кирпич Керамоблок
Кладка лицевого кирпича на цементно-песчаный раствор(кирпич выбирает заказчик)
Устройство внутренних перегородок из полнотелого кирпича
Устройство монолитных железобетонных перемычек с утеплением
Окна и двери
Монтаж окон ПВХ опция опция опция
Монтаж входной металлической двери опция опция опция

Возможно поэтапное строительство

Фундамент1 этап

Коробка от дома2 этап

Отделка фасада3 этап

Остались вопросы?

Консультация по строительству:

8 (4872) 58-94-99 написать в WhatsApp
Обращаем ваше внимание
Вы можете предоставить свой проект для строительства дома

Вы можете предоставить свой проект для строительства дома

При необходимости - поможем спроектировать вам индвидуальный проект

При необходимости - поможем спроектировать вам индвидуальный проект

Эскизно-монтажные чертежи проекта дома - бесплатно!

Эскизно-монтажные чертежи проекта дома - бесплатно!
* при заказе строительства дома

Предлагаем ознакомиться со схемой нашей работы, чтобы знать, что именно ждет вас на этом пути
Перейти к схеме
Здесь Вы можете задать вопрос или оставить заявку
Наши партнеры
Дом строй Подмастерье Кровельный центр Кровля изоляция ЛеруаМерлен